Hjemme hos Formue
Å komme inn på kontorlokalet til Formue Tromsø skal føles som å komme hjem til dem – det var en av grunnverdiene da kontorlokalet deres skulle renoveres i 2022. Det første som møter deg når du kommer inn døra er en generøs lounge. Kantine ble byttet ut med spisestue, møterom fikk ekstra komfortable stoler og lukket garderobe gir et ekstra hjemmepreg. De lune omgivelsene gjør det behagelig og rolig, både for kunder og ansatte.
Et lokalt samarbeid
Formue er et ledende selskap i Norden for uavhengig rådgivning mot formuende privatpersoner, og yter høy service for sine kunder. Da kontorlokalet deres i Tromsø skulle renoveres, var det viktig for Formue å velge en lokal leverandør som kunne skape et helhetlig konsept med leveranse. Sammen med andre lokale bedrifter innen bygg, el, glass, flis, ventilasjon, kjøkken og garderobe klarte vi å skape et helt unikt lokale for kunden.
Interiørarkitekt
Inventum Tromsøs interiørarkitekt var med i hele prosessen fra start till slutt. Fra ny planløsning, møbleringsplan, belysningsplan, konseptutvikling, farger og overflater, produktutvalg, spesialdesign og styling. Interiørkonseptet er utviklet spesielt for kunden og er en ny tolkning av nordisk interiør med fokus på Nord-Norge.
Spesialdesign
Prosjektet omfater flere elementer for spesialdesign. Pendlene på møterommene og i spisestuen ble til i en prosess med den lokale glasshyta. Sammen med Inventum Tromsøs interiørarkitekt ble lampene designet til prosjektets interiørkonsept og gir en helt spesiell atmosfære og sjel til rommene.
Garderobene er også et resultat av spesialdesign og lokalt samarbeid da både lokal garderobeprodusent, flislegger, glassmester og elektriker måte ha tet dialog for å sammen lage garderoben i entréen. Garderoben for de ansate er også spesialdesignet for å passe inn i nisje med spesialmål, og har en åpen løsning for tillgjengelighet.
Prosess
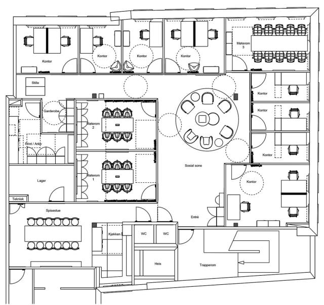
Flere av fasilitetene som plassering av eksisterende kontorer, møterom og spiserom ble bevart for å unngå unødvendig ombygging. Nye vegger er sat opp med hensyn til skjørt i himling. Vi har hat dialog med de andre involverte fagene for å komme frem til funksjonelle løsninger som også ser bra ut. Det har vært justeringer underveis i prosjektet for å bl.a. tilpasse håndverkeres rekkevidde, endringer i budsjet, mulighet for å gjenbruke dører og nye kjøleanlegg som kom inn sent i prosessen. Endringer er helt normalt, og det er fint at vi evner å snu oss rundt når planer endres.
Arbeidsplassen
Lokalet består utelukkende av high-end møbler og kontorene er ingen unntak. Med generøs arbeidsstol, bordunderstell med moderne detaljer, buede PC-skjermer og skjermvegger av høyakustisk verdi er dete et delikat kontordesign av høy kvalitet. Det er valgt teppegulv for et lunt innemiljø som også demper trinnlyden og beige toner for et rolig og tidløst utrykk. Møteromsmøbler inne på kontorer er loungeinspirert for å skape en komfortabel atmosfære.
Rom for gode møter
På møterommene er det bevisst valgt komfortable møbler som gir grunnlag for gode og rolige møter. Med bruk av ulike teksturer og nedtonede komplementærfarger fremstår møterommene som dempede og lune og kan minne lit om et hyggelig kjøkken med rom for gode samtaler. I hele lokalet ble det i prosessen tilrettelagt veggplass for kunst som senere ble valgt av Formue sin kunstrådgiver i tråd med interiørkonseptet, som eksempelvis her på møterommet.
Interiørarkitektur og leveranse: Inventum Tromsø
Medvirkende: Bravida, Troms Byggmontering, Schwenke, Blåst, Nova, PTG, NorFloor, flislegger Kjetil Olsen, Glassmester Eriksen.
Kunst: Formue, kunstrådgiver
Foto: Linda M. Åsli
Prosessfoto: Inventum Tromsø
